请选择你所在的地区
- 省份
- 城市
- 江西
- 香港
- 澳门
- 台湾
- 北京
- 上海
- 天津
- 重庆
- 河北
- 山西
- 河南
- 辽宁
- 吉林
- 黑龙江
- 内蒙古
- 江苏
- 山东
- 安徽
- 浙江
- 福建
- 湖北
- 湖南
- 广东
- 广西
- 四川
- 海南
- 贵州
- 云南
- 西藏
- 陕西
- 甘肃
- 青海
- 宁夏
- 新疆
安卓下载
苹果下载
比极简温暖,比日系高级:“轻侘寂”正在成为家居新宠!
2025-12-02
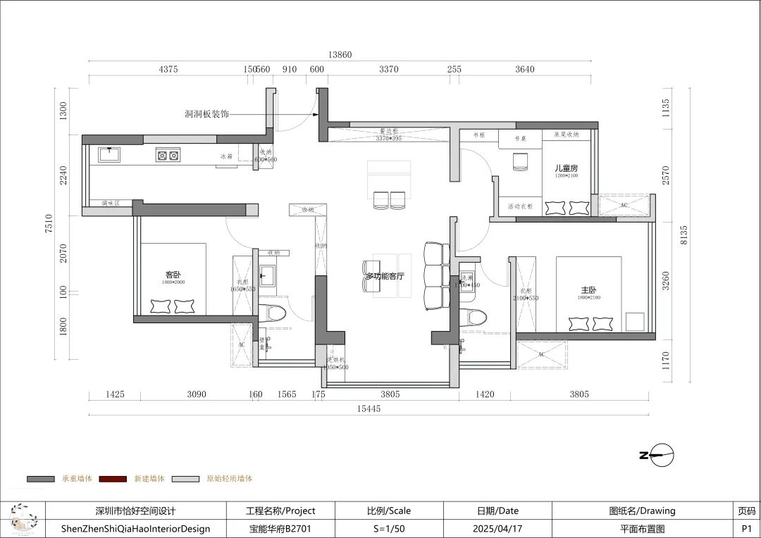
设计亮点:
1.厨房的“尺寸精准控”,厨房台面+吊柜的布局,结合了“操作动线”(洗-切-炒),同时预留了“冰箱嵌入位”,没有让冰箱凸出来占过道空间,让厨房过道更通畅。
2、客卧的“无固定功能绑定”,后期可以根据需求改成“书房+临时床”“瑜伽房+储物”,是典型的“弹性空间”设计。
3.洞洞板的“低成本适配”,后期如果厨房物品变化,不用拆改柜子,直接换挂钩就能适配,是“低成本高灵活”的设计。
4.原始轻墙体的“再利用”,没有全拆重做,既节省了装修成本,也利用轻墙体做了空间的“软分隔”避免空间过于空旷。
5.入户到厨房的“最短动线”:入户区域紧邻厨房,买菜回家不用绕客厅,符合“日常采购的动线习惯”,减少了把脏污带到其他区域的可能。
入户玄关
▌当你推开门,玄关便成了生活的序章。当极简的白墙邂逅木质的温润,家便有了治愈的温度。
没有繁杂的堆砌,仅以利落的线条勾勒空间轮廓,让光线在留白里自由穿梭。复古的展示柜藏着生活的小确幸,每一件器皿都是时光的标本;清新的绿植于角落悄然生长,把自然的气息揉进日常。
在这里,收纳是美学的延伸,每一处陈设都恰如其分。不必追逐潮流,只需在简约与质感的平衡里,把日子过成从容的模样 —— 这就是家该有的样子,让心有所栖,让美有所依。
客厅
▌以柔和的米白色为空间基底,消弭了视觉的局促感,让光线在开阔的场域里自由呼吸。
电视墙摒弃繁杂造型,仅以利落的墙面承载屏幕,将 “少即是多” 的美学贯彻到底;浅米色沙发蓬松柔软,搭着一条针织毯,瞬间让空间溢满慵懒的居家氛围,木质茶几上的花艺点缀,为简约注入了灵动的生机。
功能区的融合尽显巧思,客厅与餐厨区以开放式布局相连,木质餐边柜与玻璃展示柜的组合,既收纳了生活琐碎,又展示了屋主的品味收藏;角落的大型绿植舒展着叶片,为空间捎来自然的气息,让钢筋水泥的居所里也有了生命的律动。
用简约的骨架撑起温暖的内核,让每一次归家、每一刻休憩,都成为与舒适生活的温柔相拥。
餐厅
▌源于对 “质朴生活美学” 的追崇,以自然木质元素为核心载体,融合极简主义的空间表达。从日式侘寂风的 “素净雅致” 与北欧风的 “功能温度” 中汲取养分,希望在有限的餐厅空间里,营造出 “可触摸的质感” 与 “可呼吸的简约”。
用木质家具的天然肌理呼应生活的本真,以玻璃花器的清透、绿植的鲜活点缀,打破极简的冷寂。
上方的简约灯具洒下柔和光线,为食物与交谈镀上温暖滤镜;一旁的餐厨区,木质吊柜与开放层板的组合,让收纳也成了美学的一部分。
它不大,却足够装下一家人的三餐四季;它很简,却在每一处细节里藏着 “把日子过成诗” 的用心。这就是生活该有的模样 —— 在质朴与雅致的平衡里,让每一餐都成为值得回味的生活仪式。
厨房
▌一字型布局将动线压缩到极致,从备餐到烹饪,每一步都从容不迫;吊柜与地柜的充足收纳,让锅碗瓢盆各得其所,把杂乱隐于秩序之下。
最妙的是那扇大窗,烹饪时抬眼便是城市与远山的景致,让油烟味里也掺了几分清风与诗意。在这里,下厨不再是任务,而是一场 “看风景做饭” 的生活仪式 —— 烟火与景致共生,美味与心境同享,这才是厨房该有的模样。
主卧
▌大面积白色衣柜采用木质线条点缀,在极简中融入质感细节,满足衣物收纳的海量需求;床头的木质与软包结合,兼顾美观与舒适,床品的花卉图案为空间注入生活的鲜活气息,整体营造出 “舒展且有温度” 的休憩场域。
次卧
▌次卧走精致实用路线,定制衣柜利用角落空间做到 “顶天立地”,同时在柜体下方开辟开放收纳区,方便日常小物存取;浅木色床头简约利落,粉色床品柔和温馨,空调布局合理不压抑,在有限空间里实现 “功能与温馨的平衡。”
儿童房
▌这一方小天地,是孩子的成长乐园,也是梦想的孵化场。
浅蓝床品铺就温柔梦乡,可调节学习椅守护坐姿,蓝色书桌堆满书籍与童趣小物,每一处都为孩子的 “学习 + 玩耍 + 休憩” 量身定制。
大窗把阳光与城市风景引入室内,让孩子在明亮里探索世界、在清新中编织梦想。 没有冗余的装饰,却在每一寸空间里藏着对成长的呵护 —— 这里是童年的容器,装得下天真烂漫,也托得起求知的渴望,让孩子在专属的小世界里,安心奔赴每一个成长瞬间。
公卫
▌当卫浴不再只是功能空间,而是成为生活的疗愈场域,极简现代风便在此找到了绝佳的表达。 白与木的温润消弭了卫浴的潮湿局促感。玻璃淋浴房的利落线条,让干湿区的划分清晰又通透;大理石台面的洗手台带着天然纹理的雅致,与木质柜体的温暖相得益彰,每一处材质的碰撞都透着精致的设计感。
智能马桶、多功能淋浴系统,把科技的便捷融入极简的美学中。 这便是极简现代风的卫浴哲学 —— 用克制的设计语言,勾勒出洁净与质感并存的私域空间,让每一次洗漱、每一场沐浴,都成为卸去疲惫、重拾松弛的治愈仪式。
总结:本案是一套简约柔和的轻侘寂风,以大面积的奶白、浅杏为主色调,搭配温润的胡桃木色家具做点缀,既保持了空间的通透整洁,又通过木质元素增加了暖意。 设计上很注重 “实用与颜值兼顾”, 整个家没有复杂装饰,却靠柔和的色彩、统一的材质和充足的采光,营造出松弛又治愈的日常感,很适合追求舒适与整洁的居住需求。
点赞 127 写留言
0/100
