请选择你所在的地区
- 省份
- 城市
- 江西
- 香港
- 澳门
- 台湾
- 北京
- 上海
- 天津
- 重庆
- 河北
- 山西
- 河南
- 辽宁
- 吉林
- 黑龙江
- 内蒙古
- 江苏
- 山东
- 安徽
- 浙江
- 福建
- 湖北
- 湖南
- 广东
- 广西
- 四川
- 海南
- 贵州
- 云南
- 西藏
- 陕西
- 甘肃
- 青海
- 宁夏
- 新疆
安卓下载
苹果下载
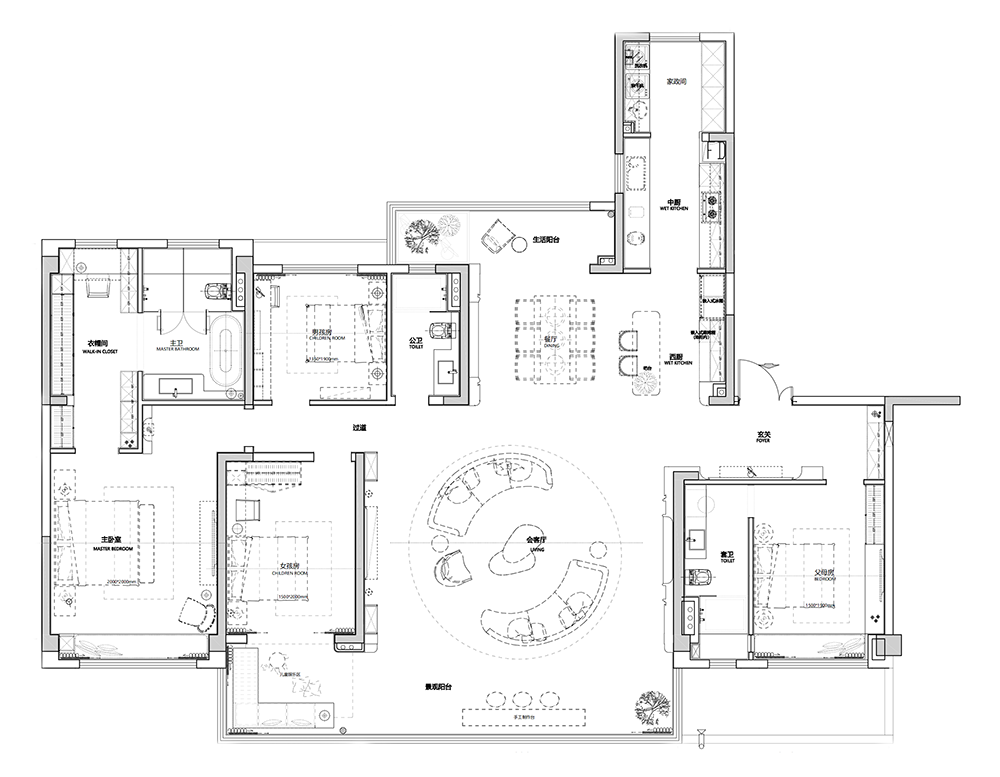
石材案例 | 215㎡轻奢大平层,层次丰富
2025-11-25
诗歌和春天都是美的化身,一是艺术之美,一是自然之美,我们从目观耳听的215大平层中寻得她们的踪迹。
设计师以春入境,照见无限春光;以诗歌节律之美,释放出轻奢的设计哲学。
T·S艾略特说:一个造出新节奏的人,就是一个拓展了我们的感情并使它更为高明的人。
客厅每一个点、线、色、形、韵,是设计师以陈设艺术谱写的一段五重奏,前景、中景与远景构图,层次丰富,线条利落。
客厅运用沙对坐方式,以海派室内布局,选用包裹性很强的弧形沙发家具BAXTER,黑色皮革与生俱来的神秘魅惑,红棕色天鹅绒自带的优雅简约,低调奢华之间又蕴含无穷的底蕴。
气度从容的空间,在一呼一吸之间,释放生活的质感美学,既是隶属于时间的雕塑,也是对生命的凝视。
清风徐来,飘逸的帷幔,内在的韵律,恬静的配色,难以用评论家的语言以诠释,却是花欲解语还多事,石不能言最可人。
餐厅,是从五感欢迎到五脏并转换成能量的场域,汇聚元气缤纷,烟火满满,家庭成员带着各自的属性和色彩,和食物一道用空间与时间混响成新的故事。
岛台环绕,双洄游动线,线条曲直并行,材质刚柔搭配,精致淬炼成白雪与黄金,遵循高阶餐桌礼序,满足理想生活仪式。
自然光在空间内游走的轨迹,将室外自然的光与景尽可能多地引入室内,让室内外气韵生动,流动贯通,素笔勾勒的设计语言,逸趣浑然天成。
步入式衣帽间,木饰隔板与金属挂件将衣帽间简洁合理地划分,设计选用淡雅影木,线条流畅简洁,充满情调,同时考究整体灯光、色调和材质等搭配而呈现,显露出细节品质感。
软装艺术是人们内心的投影,蓝色基调以上,是活力外显与青春喷薄。足球软枕与挂饰,激发出对户外竞技场的热爱。
柔软质感的材料,借助日光雕刻,找回细微的、缓慢的温柔,在女孩房的空间序列加入暖色调的酝酿情绪,形成光影、色彩与调性的三方对话。
随着光的渐变在变幻之中苏醒,晕染了柔软诗意。设计赋予空间艺术美与建筑美,空间满足使用者的欲求,应尽可能开放,去繁留简,摘去多余线条,留存原始美学。
平面图
点赞 133 写留言
0/100
