请选择你所在的地区
- 省份
- 城市
- 江西
- 香港
- 澳门
- 台湾
- 北京
- 上海
- 天津
- 重庆
- 河北
- 山西
- 河南
- 辽宁
- 吉林
- 黑龙江
- 内蒙古
- 江苏
- 山东
- 安徽
- 浙江
- 福建
- 湖北
- 湖南
- 广东
- 广西
- 四川
- 海南
- 贵州
- 云南
- 西藏
- 陕西
- 甘肃
- 青海
- 宁夏
- 新疆
安卓下载
苹果下载
105平简约北欧风格装修,玻璃玄关太惊艳,全地台书房最实用!
2025-11-07
入户的设计比较独特,一道弧形的玻璃,让这个不大的家拥有了一个超大的景观房。
▲原始户型图
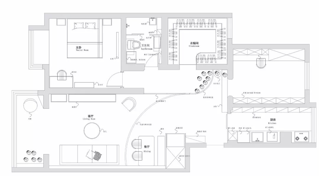
▲平面布置图
设计师对这套房子做了以下改造:增加入户景观房;正对入户门的卧室门左移,避免入户正对卧室,有效的保护了隐私;扩大了书房和厨房的门洞,增加空间的采光和通透感。
| 玄关 |
玄关使用直径2000mm的曲面玻璃与书房、衣帽间的拱形门洞相互融合。
| 客厅 |
玄关进来就是客餐厅,整个空间宽敞明亮。
沙发后面的半高储物柜,从餐厅延伸到客厅。
| 餐厅 |
客餐厅通过顶面的梁进行功能分区,将沙发、餐桌外移200mm增加一个超长储物柜,餐边柜都省了。
胡桃木餐桌椅。
玄关鞋柜很巧妙的和嵌入冰箱相结合,很巧妙的把原来很难利用的死角做成储物柜,增加储物空间。
| 厨房 |
厨房做了一整面墙的钛镁合金推拉门,防潮功能很好。
| 书房 |
书房地面做了全屋地台的设计,地台高180mm,在家里来客人时摇身一变就成为了客房。
| 卧室 |
卧室做了暗嵌窗帘轨道的设计,超大的飘窗,三面白橡木包口。
斗柜旁边是女主人的要梳妆台,孔雀蓝丝绒化妆凳瞬间拉高了整体的颜值。
| 衣帽间 |
点赞 135 写留言
0/100
